

About Us
Welcome to SD Services, where we provide top-tier, specialized services designed to help you achieve your project goals with precision, efficiency, and quality.
At SD Services, we bring decades of expertise from SD Industries, leveraging our extensive background in architectural metalwork, fabrication, and engineering to offer a diverse range of professional services. Our focus is on delivering tailored solutions that meet the unique needs of every client, from initial design through to final implementation.
Architectural Design Services
Our Team team helps bring your ideas to life with mock-ups, prototypes, and production-ready designs for fabrication and installation.
-
Design Approach: Creative, technically driven solutions aligned with project vision and performance requirements
-
Concept Development: Translation of ideas into functional, buildable architectural designs
-
Detailing & Documentation: Shop-ready drawings that guide fabrication and construction
-
Custom Solutions & Optimization: Tailored architectural systems with optimized materials for aesthetics, durability, and cost efficiency
Software: AutoCAD, Revit, Rhino, ArchiCAD, Lumion, V-Ray, KeyShot, Sketchup
Engineering Services
Our team delivers end-to-end engineering services for structural analysis, connection design, and custom fabrication, to ensure strength, stability, constructability, and full code compliance with fabrication-ready details tailored to your shop and field installation requirements.
-
Structural Analysis: Code-compliant load calculations aligned with design intent and real-world conditions
-
Connection Design: Safe, efficient welded and bolted details engineered for constructability
-
Simulation & Testing: FEA-driven stress, load, and performance validation
-
Fabrication-Ready Output: Shop- and field-optimized drawings and models that reduce rework
Software: AutoCAD, AutoDesk Inventor, Advanced Steel, Nastran
Scan To Detail Design Services
Our team takes full ownership of your site using 3D scans and point-cloud data, delivering accurate, buildable models that drive engineering, fabrication, and installation.
-
Full-site design development directly from 3D scans and point-cloud data
-
Complete ownership of as-built conditions, geometry, and tolerances
-
Detailed modeling supporting engineering, fabrication, and installation
-
Clash resolution, coordination, and dimensional control prior to fabrication
Software: Revit, AutoCAD, Rhino, Navisworks, Recap, Autodesk Inventor
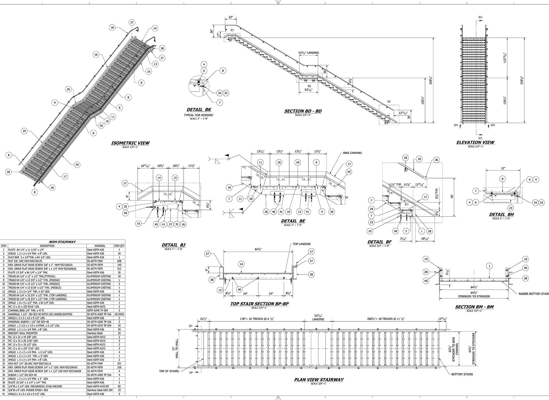
Shop & Fabrication Drawings
Our team converts design intent into clear, fabrication-ready drawing packages that support accurate production and efficient, trouble-free installation.
-
Accurate detailing with dimensionally precise, specification-driven drawings
-
Coordinated layouts that improve field installation efficiency and reduce questions
-
Streamlined, well-organized submittals that accelerate review and approval cycles
-
Early clash detection and coordination to minimize rework and RFIs
Software: AutoCAD, Advance Steel, Autodesk Inventor, Revit
Software & Tools We Use
We use industry-standard and advanced design tools to ensure precision, compatibility, and high-quality output:

Autodesk AutoCAD

Autodesk Advance Steel

Autodesk Navisworks

Autodesk ReCap

Autodesk Inventor

Autodesk Revit

GRAPHISOFT Archicad

KeyShot 3D Rendering

Lumion 3D

Rhinoceros 3D

V-Ray (by Chaos)








